适用范围
该断路器系三相交流50Hz户外高压开关设备,主要用于农网和城网的12kV系统,作为分、合负荷电流、过载电流及短路电流之用。也可用于其它类似场所。
型号及其含义

使用环境条件
1、周围空气温度:上限+40℃,下限-40℃
2、海拔不超过2500m:
3、风压不超过700pa(相当于风速34m/s);
4、无经常性的剧烈振动;
5、空气污秽程度:Ⅲ级;
6、最大日温差:25K。
结构特征
1、产品结构:
断路器由操动机构、导电回路、绝缘系统,密封件及壳体组成。整体结构为三相共箱式。导电回路是由进出线导电杆、动静端导电板、导电夹与真空灭弧室连接而成。外绝缘主要是通过硅橡胶材料来实现的,具有强抗污秽能力。内绝缘为复合绝缘。
2、动作原理:
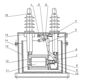
断路器是由操动机构操纵的,见图1,机构或分闸弹簧4带动断路器的三相主轴2转动,同时拉动绝缘操作杆5和拐臂6,使真空灭弧室11的动静触头拉开或闭合,而使断路器处于分闸或合闸状态。
| 序号 | 名称 | 单位 | 数据 | |
| 1 | 额定电压 | kV | 12 | |
| 2 | 额定电流 | A | 630 | |
| 3 | 工频干耐压(lmin) | kV | 42 | |
| 4 | 雷电冲击耐压(峰值) | 75 | ||
| 5 | 额定短路开断电流 | kA | 16 20 25 | |
| 6 | 额定短路关合电流 | 40 50 63 | ||
| 7 | 额定峰值耐受电流 | 40 50 63 | ||
| 8 | 4s短时耐受电流 | 16 20 25 | ||
| 9 | 额定操作顺序 | 分-0.3s-合分-180s-合分 | ||
| 10 | 额定短路电流开断次数 | 次 | 30 | |
| 11 | 机械寿命 | 10000 | ||
| 12 | 储能电机额定电压 | V | DC或AC 220 | |
| 13 | 额定操作电压(弹簧操动机构) | 分闸线圈 | ||
| 合闸线圈 | ||||
| 14 | 过流脱扣器额定电流 | A | 5 | |
| 15 | 动静触头允许磨损厚度 | mm | 3 | |
断路器装配调整后达到的数据见表2
| 序号 | 名称 | 单位 | 数据 |
| 1 | 触头开距 | mm | 1 1±1 |
| 2 | 触头超行程 | 3+1 0 | |
| 3 | 平均分闸速度 | m/s | 1.1±0.3 |
| 4 | 平均合闸速度 | 0 7±0.15 | |
| 5 | 触头合闸弹跳时间 | ms | ≤2 |
| 6 | 三相分合闸同期性 | ≤2 | |
| 7 | 每相回路直流电阻 | m0 | ≤1 50(带隔离20 0) |
| 8 | 动、静触头允许磨损累计厚度 | mm | 3 |
| 9 | 质量 | kg | 配手动机构:152 |
| 配手动机构:162 |
组合断路器主要技术参数见表3
| 序号 | 项目名称 | 单位 | 数据 | |
| 1 | 额定电压 | kV | 12 | |
| 2 | 额定电流 | A | 630 | |
| 3 | 4s热稳定电流(有效值) | kA | 20 25 | |
| 4 | 动稳定电流(峰值) | kA | 50 63 | |
| 5 | 1min工频耐压 | 干试 | 42 | |
| 湿试 | 34 | |||
| 6 | 雷电冲击耐压(峰值) | kV | 75 | |
| 7 | 质量 | kg | 配手动机构:180 | |
| 配电动机构:190 | ||||
外形及安装尺寸

图1断路器本体内部结构示意
1-分闸缓冲器
2-三相转轴
3-分闸拉杆
4-分闸弹簧
5-绝缘拉杆
6-拐臂
7-触头弹簧
8-触头推杆9-动端支架
10-软联结
11-真空灭弧室
12 -静端支架
13-绝缘罩
14-箱体
15 -电流互感器
16-导电杆

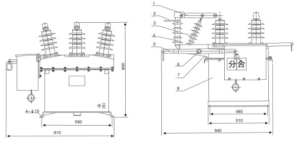
图2断路器外形尺寸及安装尺寸图

1、接触刀片2、触刀3、绝缘拉杆4、支柱
5、隔离开关操作手柄6、转轴7、隔离开关支架8、断路器
图3组合断路器结构及外形尺寸、安装尺寸图
产品要安装在高4m以上的柱子上使用,安装孔尺寸见图4

图4安装孔尺寸
订货须知
订货时要说明产品的型号、名称、数量、短路开断电流、额定电流、所配电流互感器电流比,操作方式及使用场合。


400-101-0306

bg真人平台
电话
产品